Local History News: December 17, 2025
Field Note Members of the West Central Minnesota Historical Association met on October 13 at the Wheels Across the Prairie Museum in Tracy, MN. 15...
The Minnesota Historical Society and the Minnesota Discovery Center participated in the 5th annual Range Iron Pride Festival this weekend in Virginia, MN. The informational booth featured the Greater Minnesota Two-Spirit & LGBTQIA+ History Map, an interactive project preserving regional LGBTQIA+ histories. Visitors engaged with staff, accessed educational resources, and shared personal stories. The festival’s theme, “You belong. I belong. We belong,” underscored the Society’s ongoing commitment to inclusive historical preservation and the amplification of underrepresented narratives throughout Greater Minnesota.
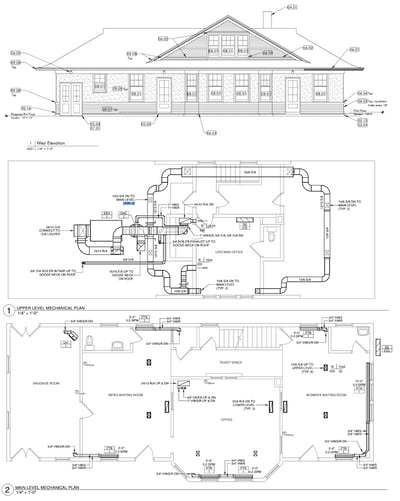
Spotlighted Project: Assessment and Design Development Documents - Duluth and Iron Range Railroad Company Passenger Station
The City of Tower has successfully completed the assessment and design development phase for the Duluth and Iron Range Railroad Company Passenger Station, commonly referred to as the Tower Depot. Built in 1916 and listed on the National Register of Historic Places, the depot has served as both a transportation hub and a cultural landmark, shaping the growth of tourism in the Lake Vermilion region. This project produced thorough construction drawings, specifications, and a defined scope of work in accordance with the Secretary of the Interior’s Standards for the Treatment of Historic Properties. These documents now provide a clear blueprint to stabilize, restore, and rehabilitate the structure while preserving its historic integrity. The work ensures that the building, which houses the Tower-Soudan Historical Society and serves as a history and visitor center, can continue to function as a vital community and tourism resource.
Recipient: City of Tower
Funded Amount: $42,170
Small Grant Deadline
Applications for the Minnesota Historical and Cultural Heritage Grants quarterly small grant round (requests of $20,000 and less) will be due Friday, October 10, 2025. Contact the Grants Office with questions.
Grants Office Webinar: First Steps Towards a Grant
August 21 @ 2 to 3 pm (CT) - Online: In this webinar, you will learn what you need to do to register for a grants portal login, how to apply, what the grant programs offer, what the programs can fund, and which resources are available for applicants. If you have never applied for a grant before or would like to hear about the process again, this webinar is for you. Presented by MNHS Grants Staff.
Join online: meet.google.com/zwx-krei-com
Join by phone: (US) +1 386-361-3086 PIN: 420 891 978#
Grants Office YouTube Playlist »
This week's blog post is from Rethos. Have a blog? Let us know!
Support Minnesota Main Streets!
Rethos has been a proud Main Street America Coordinating Partner for over a decade, and our Minnesota Main Streets (MMS) program has had the honor of working with dozens of Minnesota towns, cities, and urban neighborhood commercial districts during this time.
Unfortunately, legislative changes and subsequent consequences affecting the primary funding source for this program have been taking its toll, requiring a reevaluation of the structure and staffing for Minnesota Main Streets.
Although we are currently at capacity for participation in MMS, support for our current Minnesota Main Streets districts will continue to be our primary focus as a new structure and additional services are explored. During this time of transition, current MMS programs will continue the work of transforming their downtowns into vibrant places of community pride.
Continue Reading »
This week's post is from the History Center of Freeborn County. Have a video channel or podcast? Let us know!
Ghost Towns of Freeborn County: The Fight for the County Seat!
The fierce mid-19th-century competition among Freeborn County communities to secure the coveted title of county seat—a designation that promised a courthouse, jail, administrative offices, and long-term survival for the winning town. Take a look to see how Albert Lea beat out the other towns to become the county seat. Listen to episode »
Heritage Preservation YouTube Playlist »
Minnesota Historical Society's Job Announcement, Internship, Fellowship, and Volunteer Opportunity pages.
Additional Job Postings in the Field »

Early picture of Dodge County Fair. A trapeze act.
Image used with permission. From the collections of the Dodge County Historical Society.
FAQ: How Can I Share My Event for the Local History News E-Newsletter?
Dog Days of Summer
August 14 @ 4 pm to 6 pm – Rochester: History Center of Olmsted County – Celebrate the first annual Dog Days of Summer with activities for humans and their canine companions. Enjoy a demonstration from the Rochester and Olmsted County K9 Units at 4 pm, take part in a guided dog walk around the History Center Campus, visit local dog-related vendors, and purchase concessions to support the History Center. Cost: Free. Learn more »
Genealogy Class: Using Timelines in Your Research
August 14 @ 7 pm to 8:30 pm – Rochester: History Center of Olmsted County – Learn how to expand and enhance your family history research through the use of timelines in this class led by genealogy expert Lois Abromitis, presented in partnership with the Olmsted County Genealogy Society. Discover how creating chronologies of events in your ancestors’ lives can help solve research problems and reveal gaps in your information. Cost: $15 members/$20 general. Learn more »
History Revealed – Minnesota History Day Students
August 14 @ 5:30 pm to 7:30 pm – St. Paul: Ramsey County Historical Society – Celebrate the achievements of Minnesota History Day students as they share their research and projects highlighting significant historical events and figures. This program offers a chance to hear directly from young historians and learn about their work. Cost: Free. Learn more »
Write to Political Prisoners in Russia
August 16 @ 1 pm to 3 pm – St. Paul: Germanic-American Institute – Take a stand for human rights and freedom of expression by participating in a letter-writing event supporting over 1,000 individuals in Russia who have been unjustly imprisoned for voicing their opinions. Hosted by Russians Against War Minnesota in partnership with TMORE and World Without Genocide, this nonprofit has organized over 15 similar events and sent hundreds of letters, often receiving responses from prisoners. No registration required; refreshments and light snacks provided. Cost: Free. Learn more »
Polish Picnic 2025
August 16 @ 12 pm to 6 pm – Columbia Heights: PACIM – Celebrate Polish culture and community at the annual Polish Picnic in Huset Park. Enjoy live music and traditional dance performances by Craig Ebel & DyVersaCo, Joe Mack, and the Dolina Polish Folk Dancers, plus delicious Polish cuisine for purchase, games, arts and crafts, a splash pad, and a playground. The event begins with a moment of remembrance at the 1944 USAAF Warsaw Uprising Airlift Memorial. Cost: Free. Learn more »
Never-Forgotten: Col. William Colvill, Minnesota’s Magnificent Civil War Hero, featuring Steve Hoffbeck
August 19 @ 5:30 pm to 6:30 pm – Grand Marais: Historic Cook County – Join historian and author Steve Hoffbeck for a presentation on the life and legacy of Colonel William Colvill, one of Minnesota’s most distinguished Civil War heroes. Learn about his leadership, bravery, and the impact he left on state and national history. Learn more »
Millions of Minnesota Artists Writing Series – Wanda Gag
August 19 @ 6 pm to 7:30 pm – Mankato: Blue Earth County Historical Society – Learn about the life and work of beloved Minnesota author and illustrator Wanda Gag as part of the Millions of Minnesota Artists Writing Series. Discover her artistic journey, literary contributions, and lasting cultural impact. Cost: Not specified. Learn more »
History Cruise
August 19 @ 5:30 pm to 8 pm – Stillwater: Washington County Heritage Center – Spend a summer evening cruising the St. Croix River while enjoying entertaining stories about the area’s history presented by Angie Hong. Enjoy hearty hors d’oeuvres and a cash bar on this scenic sojourn. Boarding begins at 5:30 pm. Cost: $60. Learn more »
Surveying Rice County
August 21 @ 6 pm – Faribault: Rice County Historical Society – Don Borcherding presents on the early surveying of the county and the men who did it. See historic surveying tools, including a solar compass and a surveyor’s chain. Borcherding, a retired Professional Engineer and Surveyor licensed in multiple states, has led numerous professional organizations, taught at St. Cloud State University, and authored two books on surveying history. Cost: Free members/$5 general. For more information call 507-332-2121.
Mendota After Hours: Fading Ads of the Twin Cities at Sibley
August 22 @ 6 pm to 8 pm – Mendota: Dakota County Historical Society – Explore the history and stories behind the Twin Cities’ fading advertisements in this engaging evening program at the Sibley Historic Site. Learn about the people, businesses, and cultural moments captured in these ghost signs that still peek through the cityscape. Cost: $15 members/$20 general. Learn more »
Journeys of Identity Documentary Screening
August 23 @ 1 pm to 3 pm – St. Paul: Heritage Organization of Romanian Americans in Minnesota – Attend a screening of Journeys of Identity, a documentary exploring stories, heritage, and cultural identity within Minnesota’s Romanian American community. Cost: Free. Learn more »
What’s In A Name, Part VI – Mahtomedi
August 25 @ 6 to 7 pm – White Bear Lake: White Bear Lake Historical Society – Join Dan Jones for Part VI of a series exploring the origins and stories behind the street and park names around the White Bear area, including Warner Road, Chautauqua Beach, Elsie Inn, and Park Avenue. Enjoy learning the fun and rich history behind these local names. No advance registration is required. Location: Ramsey County Library, White Bear Lake. Cost: Free. Learn more »
It Happened Right Here: Jewish Summer Camp
August 27 @ 1 pm to 3 pm – St. Louis Park: Jewish Historical Society of the Upper Midwest – Join Sholom and JHSUM for a screening of a short documentary celebrating the legacy of Jewish summer camps in the Upper Midwest, followed by an intergenerational panel discussion with Sholom residents and recent campers. Explore how these camps have shaped Jewish identity and community across the region. Cost: Free. Learn more »
Southwest of Lake Harriet: From Mrs. Thornton’s Resort to the Fulton Neighborhood
August 27 @ 6:30 pm to 8:30 pm – Minneapolis: Linden Hills History Study Group – Join this guided walking tour starting at the corner of Thomas Avenue S. and W. Lake Harriet Parkway to explore the development of the Fulton neighborhood from its beginnings as Mrs. Thornton’s lakeside resort. Learn about the area’s evolution with the opening of Robert Fulton School, streetcar expansion, early Black residents, and landmark churches, while seeing how the neighborhood’s character continues to change. Cost: Free. Learn more »
History on the River Cruises: Historical Tales of Local River Rats
August 28 @ 4 to 5:30 pm & 6 to 7:30 pm – Winona: Winona County Historical Society – WCHS Museum Educator Jennifer Weaver will share historical stories of notable people from Winona County’s past who had a love for the river. Learn about the lives and legacies of Cal Fremling, Emil Liers, John Latsch, and hear accounts from the 1940 Armistice Day Blizzard. Part of the History on the River Cruises series. Cost: $35 – $45. Learn more »
Artifacts and Train Wreck Stories from the Old Grade Road
August 28 @ 7 pm – Crosslake: Crosslake Log Village – Join in for an engaging evening sharing artifacts and stories from the Old Grade Road, including train wreck histories that shaped the area. Discover local history through fascinating tales and preserved items from the past. Learn more »
History from Austin Public Schools
August 28 @ 12 pm to 1 pm – Austin: Mower County Historical Society – Enjoy a program exploring the history of Austin Public Schools. Learn about the people, events, and changes that have shaped local education over the years. Cost: Free. Learn more »
Genealogy Smart Start: Things I Wish I’d Known
September 3 @ 7 pm to 8:15 pm – St. Paul: Minnesota Genealogical Society – Join in for an informative session sharing tips, lessons, and insights that seasoned researchers wish they’d known when they started their genealogy journey. Perfect for beginners and those looking to sharpen their research skills. Cost: Free. Learn more »
Explore Minnesota - State of MN's Tourism website
Listings: History & Heritage Events | Historic Exhibits | Lectures & Workshops
Register for an Account »

Highlighted Museum: Two Harbors Lighthouse Museum, operated by the Lake County Historical Society, Two Harbors, MN.
Photograph by pmarkham, distributed under a Creative Commons Attribution-Share Alike 2.0 license.
From Project to Perpetuity: How St. Kate's Built a Lasting Outdoor Sculpture Corps
August 14 @ 12 to 1 pm (CT) - Online: Connecting to Collections Care – This webinar reviews how St. Catherine University created an Outdoor Sculpture Corps that cares for sculptures on campus and is structured to sustain this work indefinitely. Cost: Free. Learn more »
Pedagogy and Public Memory: Partnering with the Pomeroy Foundation on Historical Marker Grants
August 20 @ 2 pm (CT) Online: National Council on Public History – Susan Hughes will introduce the benefits of the Pomeroy Foundation’s diverse historical marker grant programs and national education initiative, which teaches students to research primary sources for applying to Pomeroy Marker grants. Jessica Elfenbein will share her experience using this curriculum with graduate students to prepare grant applications commemorating history in South Carolina. The workshop covers the importance of primary sources and offers tips for creating standout marker grant applications. Learn more »
Mapping Risk, Protecting Collections: Flood Preparedness for Cultural Institutions
August 20 @ 12 to 1 pm (CT) – Online: Conserv – Water emergencies like flooding, leaks, and severe storms can seriously threaten cultural collections, but not all institutions face the same risks. This webinar helps museums, libraries, and archives identify their vulnerabilities using public maps and hazard assessment tools. Cost: Free. Learn more »
The Revamp Roadmap: How to Implement a New Membership Program in Five Steps
August 21 @ 2 pm (CT) – Online: Texas Historical Commission – Robin Linek, Associate Director of Membership and Social Engagement at the Meadows Museum at SMU, will review her museum’s membership program overhaul, including benchmarking data against peer institutions and calculating the fair market value of benefits. She will also share strategies to attract new audiences, encourage growth, and retain current members. Cost: Free. Learn more »
History Hour: Historic House Interpretation
August 26 @ 2 pm (CT) - Online: American Association for State and Local History - Discuss the findings of the historic house museums summit and provide your feedback with the AASLH Historic House Committee. Cost: Free. Learn more »
Fundamentals of Nonprofit Finance
August 26 @ 9 am to 12 pm (CT) - Online: Propel Nonprofits - This workshop is right for you if you are new to the nonprofit sector, nonprofit finance, or your position as staff or board member. Cost: $95. Learn more »
|
October 29 - November 1, 2025 |
September 10 - 12, 2025 |
September 17 - 20, 2025 |
Additional Educational Opportunities »
Conservation Grants
Deadline - September 1: Samuel H. Kress Foundation - The Conservation Grants program supports the professional practice of art conservation, especially as it relates to European works of art from antiquity to the early 19th century. Grants are awarded to projects that create and disseminate specialized knowledge, including archival projects, scholarly databases, exhibitions, publications, scientific studies, and professional exchanges. Learn more »
Preserving Black Churches Grant Program
Deadline - September 12: National Trust for Historic Preservation - Grants are available to help historic Black churches and congregations reimagine, redesign, and redeploy historic preservation to address the institutions’ needs and the cultural assets and stories they steward. Learn more »
ASALH Book Prize
Deadline - September 15: The Association for the Study of African American Life and History (ASALH) awards an annual prize to recognize an outstanding book in the field of African American history and culture. Books must engage archives to be eligible for consideration; however, the book prize committee invites submissions from across disciplinary and interdisciplinary boundaries. Learn more »
National Register Signage Grant Program
Applications accepted on a rolling basis: William G. Pomeroy Foundation - This program is designed to promote historical preservation and awareness through the provision of grants for signage. This initiative supports the installation of markers and plaques that highlight and recognize sites listed on the National Register of Historic Places. By doing so, it aims to increase public engagement with America's historical treasures, encouraging education and tourism. Learn more »
Iron Range Resources and Rehabilitation Board
IRRRB is an economic development program of the State of Minnesota, designed to advance growth on Minnesota's Iron Range. The program provides grants and other funding to local units of government and non-profits to support economic development and vibrant and prosperous communities. Learn more »
Additional Funding & Award Opportunities »

Vintage Museum Photo: Ely Interpretive Center, Ely, MN. (ca. 1980).
This section features slides taken of Minnesota history museums from the 1970s through the 1990s by David Nystuen, the MNHS Field Services Coordinator, and other Field Services representatives during that time period.
Minnesota State Archives July 2025 Acquisitions
In July 2025, the State Archives added new records that build on existing collections. These materials are especially helpful for family history and local history research in Douglas County and Faribault County. Learn more »
Historic Stoppel Farmstead in Rochester enters new renovation phase
KIMT 3 News - Renovations at the historic Stoppel Farmstead in Rochester are moving into a new phase as the site prepares for its centennial celebration in 2026. Continue reading »
Cultural evolution: Somali Museum Dance Troupe redefines tradition in Minnesota
Sahan Journal - In the basement of the Midtown Global Market in Minneapolis you might find yourself transported to a different land. As you walk toward the Somali Museum of Minnesota, you might hear the joyful sounds of the jaandheer, a traditional dance from the Sanaag region of the Somali peninsula. To many listeners, particularly those from the Northern Somali region, the music says, Welcome home. Continue reading »
Historic stone building site of programs
Mankato Free Press - Local historians who manage an 1860 stone building that’s on the National Register have had their share of challenges this summer. “We weren’t able to be open on weekends because there was an issue with bats,” said Kathleen Peterson, a member of the Ottawa Historians. Her group and Le Sueur County Historical Society cohosted this summer’s first event at the Historic Ottawa Town Hall. Continue reading »
![]()
|
|
![]() |
|
Featured BookMixed-Blood Histories: Race, Law, and Dakota Indians in the Nineteenth-Century Midwest University of Minnesota Press. |
Featured Article
|
Featured Article
|
Minnesota UnraveledA podcast series by the Minnesota Historical Society
|
![]() |
![]() |
![]() |
Minnesota History Organizations Directory• County, Chapters, and Local |
Minnesota Main Streets |
Preservation Specialists Directory |
Subscribe to Local History News
Use Local History News as part of your online tools to stay connected to your colleagues while working from home. Know someone who could benefit from this newsletter?
Have them sign up »
Field Note Members of the West Central Minnesota Historical Association met on October 13 at the Wheels Across the Prairie Museum in Tracy, MN. 15...
Field Note MNHS staff visited with staff and faculty at the Minnesota State University, Mankato’s Memorial Library to check in on the progress of a...
Field Note MNHS visited the Gaytee-Palmer Stained Glass Studio in northeast Minneapolis on October 31 to learn about the progress of a grant to fund...